RESIDENCE OVERVIEW

 
  • Unparalleled modern estate set on a 24,400 sqf. lot.

  • Covered area 10,067 sq ft

  • Open terraces 1,668 sq ft

  • 6 Bedrooms, 1 Office & 6.5 Baths

  • Delivery Date Summer 2019

  • Construction: CBS & Concrete Slab & Roof

  • Living room + Dining room + 2 Family rooms

  • 3 covered parking spaces

  • 3 open guest parking spaces

  • Modern masterpiece 2 story residence designed by renowned Architect Cesar Molina (CMA Design Studio)

  • Staging by All About the Wow, Inc.

 

Click any of the following images for an enlarged view

FIRST FLOOR

  • Living room

  • Dining room

  • Maid´s room + Bathroom

  • Kitchen by Italkraft

  • Family room

  • Office

  • 2 Bathrooms

  • Powder room

  • Laundry room

  • Elevator

  • Infinity Pool + Jacuzzi and Waterfall

  • 3 covered parking spaces with 3 open Guest parking spaces

  • Covered terrace with bar and summer kitchen

  • Floor 48” x 24” Mocca Limestone

  • Gas Chimney


SECOND FLOOR

  • 4 Bedrooms

  • 4 Bathrooms

  • Family room

  • Elevator

  • All around terraces

  • Open Solarium 1,668 sq ft with stairs to pool deck

  • Floor 10” wide engineered wood floor


INTERIOR FEATURES

  • 12” foot minimum ceiling height in bedrooms and hallways

  • 48”x 24” Mocca Limestone floor and 10” wide engineered wood floor

  • Impressive 12 foot pivot entry door

  • High impact windows and doors

  • Italian Imported style 8 foot flush solid core doors with concealed hinges and Italian magnetic locks

  • Top of the line appliances by Sub Zero & Wolf

  • Bathroom fixtures and fittings by Hansgrohe, Duravit, Jacuzzi and others

  • Concealed baseboards

  • Insulation throughout 1st & 2nd floor ceilings and walls for extra soundproofing and temperature control

  • Glass railings on open corridor

  • 4 passenger elevator

  • Pre-wired for wireless remote control for: alarm system, main door entrance, lights, A/C, sound system by Lutron

  • Installed surveillance cameras

  • Installed music speakers

  • Staging by All About the Wow, Inc.

EXTERIOR FEATURES

  • Professionally designed by landscaping architect Hernan Lopez

  • Salt filtration system pool with two shallow beach style areas

  • Exterior gate with wireless controlled access

  • Ample marble pavers driveway for extra parking

  • 24” x 12” limestone pool deck and terraces

  • Covered terrace with bar and summer kitchen

  • 3 covered parking spaces with 3 open Guest parking spaces

  • Solarium with view and access to pool

  • Installed exterior cameras and sound speakers

  • Beautiful 20’ wide wall waterfall

  • Extensive decorative travertine marble on exterior walls


INSIDE YOUR KITCHEN

  • Italian contemporary state of the art kitchen by Italkraft with an extended isle for an eat-in kitchen experience

  • Marble and Quartz kitchen tops

  • Soft closing mechanism on all doors and drawers

  • Incorporated led lights

  • Top of the line Subzero kitchen and Wolf appliances:

        o   30” refrigerator

        o   2 wine storage units

         o   30”Freezer

         o   Microwave and double oven

    o   Gas Cooktop and 15” Teppanyaki Module

INSIDE YOUR BATHROOMS

MASTER BATHROOM

  • Imported Italian cabinets by Italkraft

  • Top of the line imported European fixtures and fittings

SECONDARY BATHROOMS

  • Imported Italian cabinets by Italkraft

  • Top of the line imported European fixtures and fittings

LAUNDRY ROOM

  • Imported Italian cabinets by Italkraft

  • Washer and Dryer

 
Capture1.JPG
 

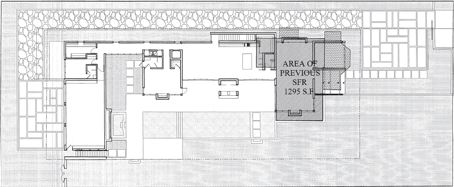
RESIDENCE AREA MEASUREMENTS

 
Area Measurements

Area Measurements

Site Plan

 
 
logo Tomas.PNG